single listings

+1 (510) 507 8665
2300 Boynton Avenue, Farifield
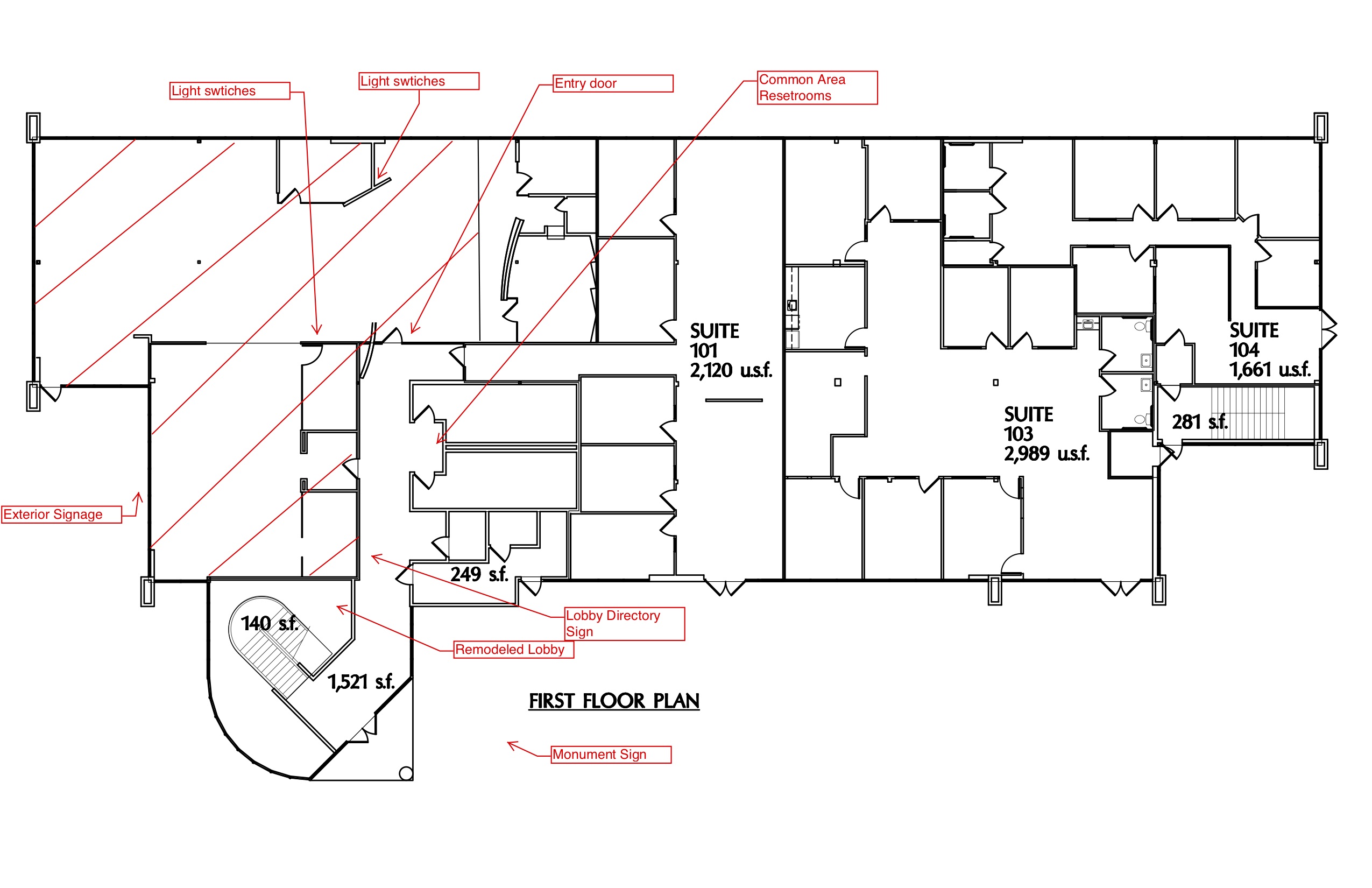
Space Analysis
Total Space
26,338 Sq Ft
1st Floor Vacant Space
4,407 Sq Ft
Divisible To (1st)
1,276 Sq Ft
2nd Floor Vacant Space
2,761 Sq Ft
Divisible To (2nd)
TBD
Description

Class "A" two (2) story office building with state of the art energy systems and after hours keyless access.

Ample free parking surrounded by mature generous landscaping. Direct, adjacent access to I-80.

Across the street from retail amenities and the Solano Transit Hub.

The area offers a large trained labor pool.

Office improvements to suit and amortized into the lease cost.

All units are in "warm shell" condition and can be quickly delivered as finished offices.

Additional Details
  • Zoning: Class A Office
  • Sprinklered: Yes
  • Amenities: Close Proximity to Restaraunts and Shopping
  • Easy Access to I-80
Disclaimer

    Thee information furnished has been obtained from sources we deem reliable and is submitted subject to errors and omission changes. Although Petrini Commercial has no reason to doubt its accuracy, we do not guarantee it. All information should be verified by the recipient prior to lease, purchase , exchange or execution of legal documents.

Property on map
Copyright © All rights reserved | This template is made with by Colorlib